TRILOCALE RITRUTTURATO


119.000 €
90 m2
2 Camere
1 Bagni
1 Box
Proponiamo in vendita splendido trilocale completamente ristrutturato nel 2023, pronto da vivere e curata nei minimi dettagli.
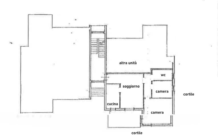
L’appartamento si compone di una luminosa zona giorno con accogliente soggiorno e cucina separata. La zona notte offre due camere da letto, ideali sia per una famiglia sia per chi necessita di uno studio o stanza ospiti, oltre a un bagno elegante e funzionale.
Completa la proprietà un piacevole terrazzino, perfetto per momenti di relax all’aperto, una comoda cantina e un box auto, elementi che garantiscono praticità e comfort nella vita di tutti i giorni.
Soluzione ideale per chi cerca un immobile ristrutturato, pronto da abitare, senza necessità di ulteriori interventi.
Caratteristiche principali
Codice
V000253
Città
Romentino
Categoria
Appartamento
Spese condominiali
1.800 € / anno
Locali
3
Camere
2
Bagni
1
Mq
90
Box
1
Mq Box
15
Terrazzi
1
Piano
Rialzato
Classe energetica
F
270,01
Stato Immobile
Ottimo
Grado
Signorile
Panorama
Vista Aperta
Orientamento
Nord Ovest Sud Est
Lati Liberi
2
Giardino
Cortile
Arredi
Non Arredato
Tipo Soggiorno
Salone
Tipo Cucina
Abitabile
Riscaldamento
Centralizzato
Tipo Riscaldam.
Caldaia a Condensazione
Tipo Impianto
Radiatori
Fonte Energetica
Metano
Acqua Calda
Centralizzata
Raffrescamento
Predisposizione
Infissi
PVC Doppio Vetro
Serramenti
Nuovo
Persiana
Tapparella PVC
Pavim. Giorno
Gres Porcellanato
Pavim. Notte
Gres Porcellanato
Pavim. Cucina
Gres Porcellanato
Pavim. Bagno
Gres Porcellanato
Accesso Disabili
No
Accesso interno disabili
Non accessibile
Accessori
Aria Condizionata, Cancello Elettrico, Doppi Vetri, Fibra Ottica, Impianto Satellitare, Passaggio Automobilistico, Passaggio Pedonale, Porta Blindata, Tapparelle Elettriche, Zanzariere
Mappa
via guzzafame , Romentino (NO)
Cookie preference