Quadrilocale zona ospedale


75.000 €
99 m2
3 Camere
1 Bagni
1 Box
Appartamento situato al primo piano di una palazzina dotata di ascensore, in posizione comoda e ben servita.
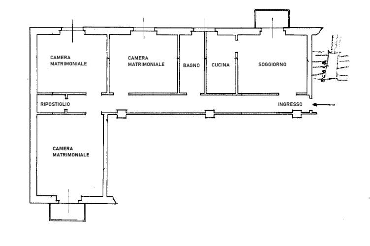
L'immobile è composto da un cucinotto, un tinello luminoso, tre camere generose, bagno e un ripostiglio. Completano la proprietà un box auto e un'ampia cantina.
Gli infissi sono in PVC con doppio vetro, garantendo un ottimo isolamento acustico e termico ed è presente un impianto di condizionamento con pompa di calore.
Caratteristiche principali
Codice
VC2
Città
Vercelli (Semicentro)
Categoria
Appartamento
Spese condominiali
800 € / anno
Locali
4
Camere
3
Bagni
1
Mq
99
Box
1
Mq Box
15
Balconi
2
Piano
1
Classe energetica
G
137,32
Stato Immobile
Abitabile
Grado
Medio
Posizione
Centro
Panorama
Vista Monumento
Lati Liberi
2
Giardino
No
Arredi
Possibilità
Tipo Soggiorno
Tinello
Tipo Cucina
Cucinotto
Riscaldamento
Autonomo
Tipo Riscaldam.
Caldaia
Tipo Impianto
Radiatori
Fonte Energetica
Metano
Acqua Calda
Autonoma
Raffrescamento
Split
Infissi
PVC Doppio Vetro
Serramenti
Ottimo
Persiana
Tapparella PVC
Pavim. Giorno
Graniglia
Pavim. Notte
Graniglia
Pavim. Cucina
Graniglia
Pavim. Bagno
Graniglia
Pavimento
Graniglia
Tipo Saracinesca
Manuale
Accesso Disabili
No
Accesso interno disabili
Parziale
Isolamento
Non presente
Isolamento termico
Nessuno
Isolamento acustico
Nessuno
Accessori
Aria Condizionata, Armadio a Muro, Ascensore, Cancello Elettrico, Doppi Vetri, Fibra Ottica, Impianto Satellitare, Passaggio Automobilistico, Passaggio Pedonale, Porta Blindata, Zanzariere
Mappa
Via leopardi 11, Vercelli (VC)
Cookie preference